SwellHouse

Home ownership is the American dream, but for many it is a compromised dream when the only affordable choice is a prefab. Rethinking the prefab home is our dream and the Swellhouse brings the future to your neighborhood today.

The Swellhouse combines the smartest building technologies with cost-efficient prefabrication methods that are the vanguard of the manufactured housing industry. Championing mass-customization and celebrating individual choice, the Swellhouse distinguishes itself this field.

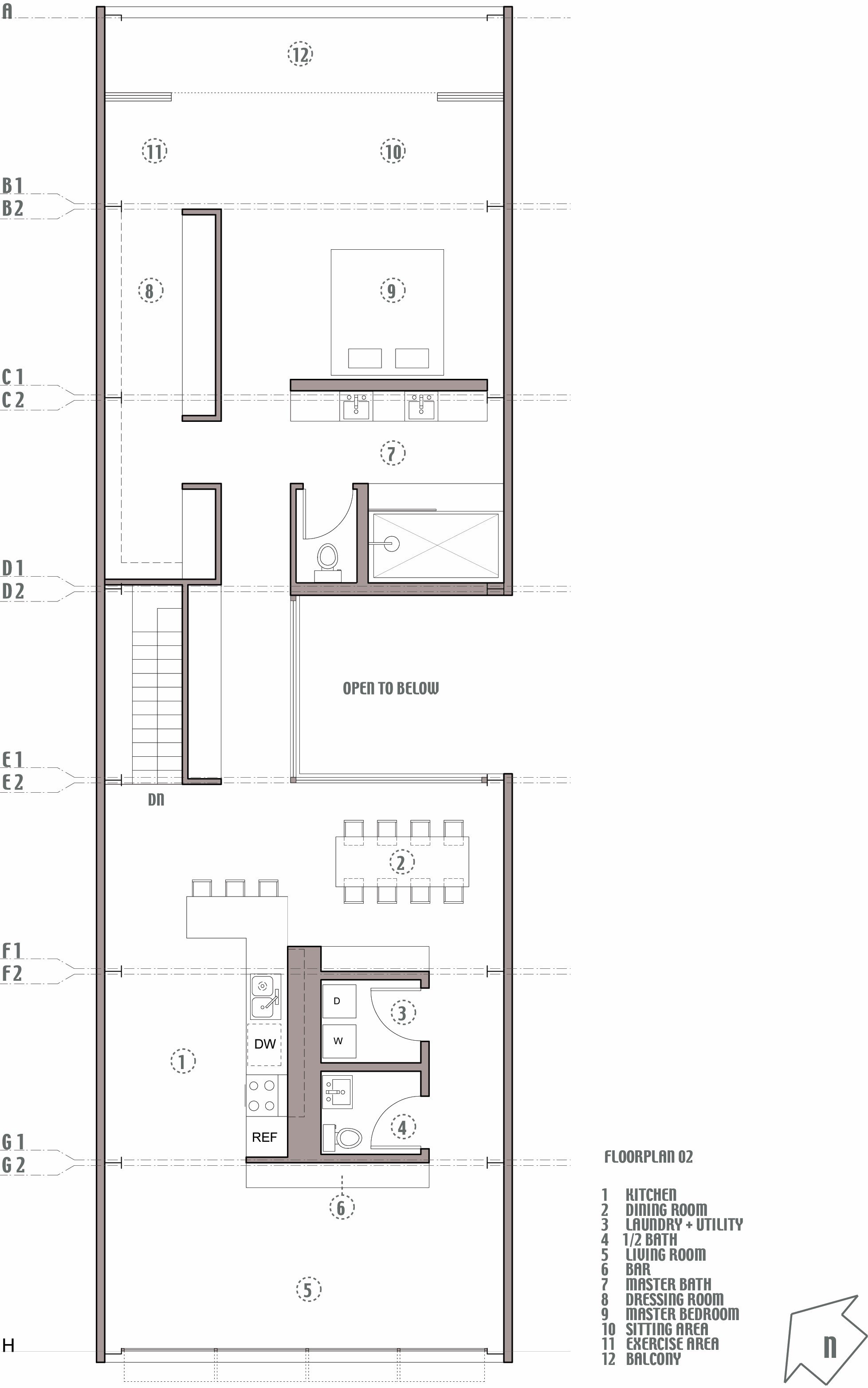
The signature ‘S’ modular structure recognizes the economy of movement where form follows necessity. Components are assembled in the factory and deployed at the site where independent ‘S’ modules are quickly bolted together. Electrical, plumbing, and information technologies are concealed within the cavities as part of this standardized modular system.

Likening itself to the human skeleton and smart skin, the Swellhouse employs materials for their performance and environmental benefits. The Ecology Sun System (ECOSS) glass panels on the first level are a sandwich of sheet glass with acrylic plastic bars and aluminum louvers, working to reduce solar heat gain by filtering sunlight from the curtain wall. The fiber cement board panels on the upper level are held away from the interior wall to produce a rain screen and water barrier while allowing natural air to flow between the wall and the cladding. This is a friendly material for the North Carolina climate.

The Swellhouse engages nature with a permeable skin of sliding panels to form interior courtyards, exterior decks or a double-height open entry vestibule. By finding harmony in the activities of everyday life – eating, playing, sleeping, washing, and working – the plan promotes a simple flow between these programmatic elements.

The Swellhouse aligns itself with the original early modernist belief that good design with environmental sensitivity through sustainable technologies will be available for the masses at low costs.

Previous
Previous

Wallpaper - HydraHouse

Next
Next

Private Client - M.O.P.